リノベ物件紹介

建売新築戸建/プチリノベ
2019.1月工事完了

宇都宮市中戸祭町/新築建売物件(アーネストワン)

アーネストワンの新築建売
物件購入費用はお尋ねください。
リノベ費用 約300万円(施主のセルフリノベ含む)
工期 実質3ヶ月 

 

この間取りなら結構面白くできるよな〜と妄想が膨らみます。

リノベーション前
リノベーション前
 
リノベーション前

元はリーズナブルな新築建売物件です。
私たちのリノベーションでこんなに変わります。
実はここは私の自宅。
たまたまタイミングよく物件とのめぐり合わせがあって、
「建売+リノベ」を実際に体験するべく自分で購入することに。

 物件購入からリノベーションにいたるまで


 
当社から徒歩5分圏内の住宅地としてもなかなか得難い中戸祭町エリアに小さく区切られた建売物件分譲が始まったのは今年の春頃。販売スタート価格は2600万円程度だったと記憶しています。
42坪程度の土地がネックとなったか、建売としては高価格帯となってしまったのかなかなか販売が思うように進まない初夏の頃。値下げも進み2300万円まで進んだところで、ようやく買い手がつき、しかしながらローンの不調などでキャンセルが続き、その結果募集価格もさらに値下げに。ここはやはり買い時です。全てに満足できる物件はまず存在しません。不動産物件探しが予算との関係も合わせて妥協の産物であることを納得できれば、そこですぐに決断して申込書にサインです。何しろ物件は1つしかないのです。


リノベーション前


リノベーション前

 
キッチンはクリナップのラクエラに取り替え。レンジフードは既存のものを使用します。リビング床のフローリングはオークB級品の無垢材を使用。節がたくさんあってかなりばらつきがある材でしたが、仕上がってみるとやっぱり無垢ならではの味があります。
 
リノベーション前

リノベーション前


リノベーション前

 
押入れは開口造作し、使い勝手のいいウォークインクローゼットに変身。 
 

宇都宮市中戸祭町

アーネストワンの新築建売

リノベ費用 約300万円/施主のセルフリノベ含む(税抜)
工期 実質3ヶ月


 
リノベDATA


 

大工工事:

1F和室撤去開口リビング一体化、キッチン袖壁撤去、押入れ利用のWIC新設

内装ドア:

リビングドア、トイレ、洗面化粧室ドア交換、クローゼット新設

壁、天井:

クロス張り替え、一部タイル仕上げ、漆喰仕上げ(セルフ)

床:

塩ビタイル、無垢フローリング施工(リビング)

バス:

既存のものをそのまま使用

洗面:

既存ものを撤去、洗面化粧台下部ユニットを交換、鏡、キャビネット新設

キッチン:

キッチン交換/背面キャビネットユニット追加設置

トイレ:

既存ものをそのまま使用

照明:

ダウンライト、ダクトレール、スポットライト

アクセサリー他:

ウッドデッキ(人工木)、日陰シェード、コンセント増設、

大型TV用壁面設置ブラケット

 

不動産販売当時の物件資料

 以前の状況→リノベプランの概要 

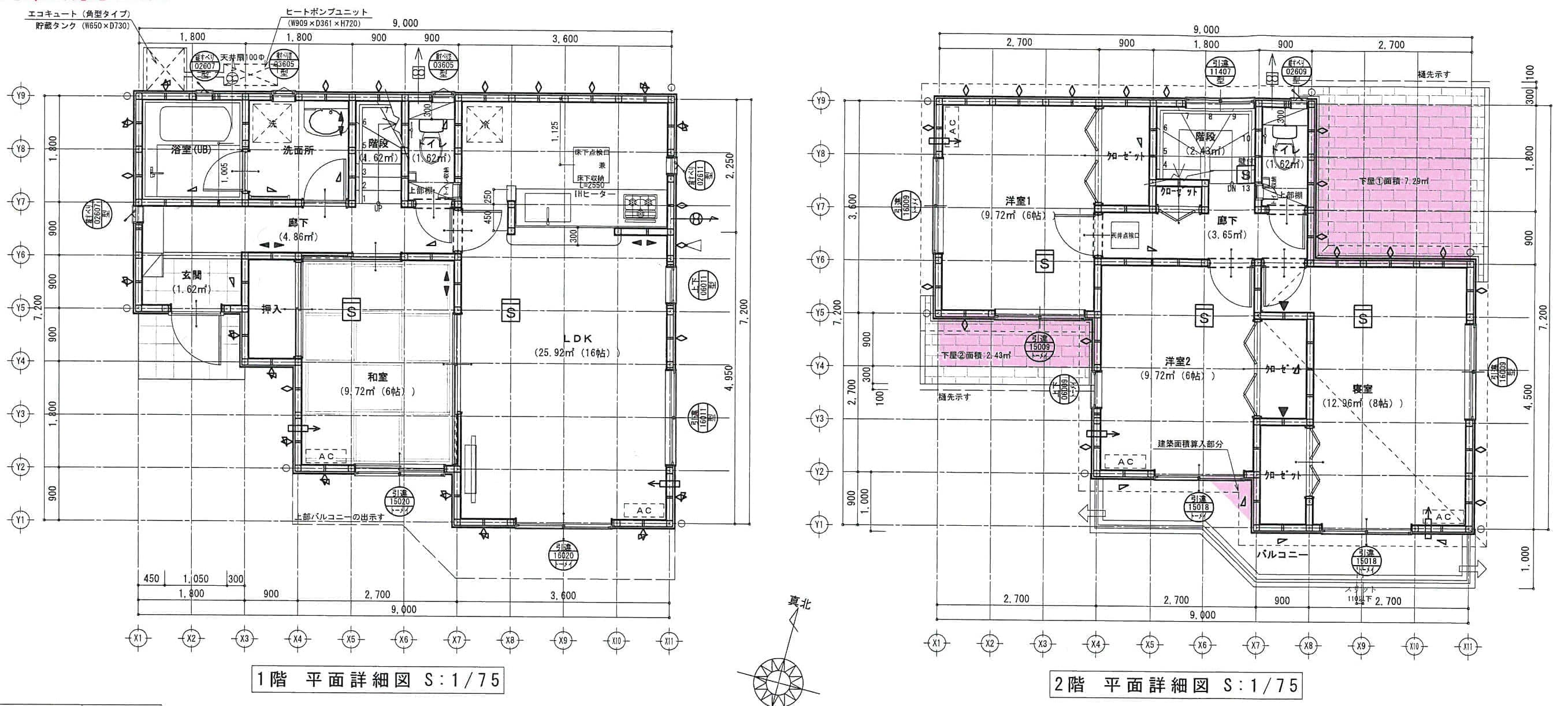
4〜5人暮らしの4LDKを確保するのが建売住宅のお決まりパターンです。
私たち家族の使い方には和室は不要で、細かい間仕切りも不要です。6畳の和室を押入れと続いたWICとLDKに続いた壁掛けTVルームにしました。
床の仕上げは奥様の希望で無垢フローリングに、壁は白いしっくいを家族で塗りました。建材メーカーの建具やクロスその他の塩ビ素材ばかりでは味気ないのです。本物の素材感が少しでもプラスされるといい雰囲気になりますね。

 
リノベーション前
リノベーション前
クリックで拡大
 

元の間取り図

リノベ後(間取り変更、クロス指定、照明プラン指定)

落ち着いたトーンの寝室

unicoのアルベロ(ソファ)

ローマンシェードが似合うしっくい壁

ところどころに可愛い壁付けランプ

TVの壁付けはいつかやってみたかった。

私が建売物件に決断できた理由

 
飯田産業やらアーネストワン、一建設など安さを売りにした建売物件についてはその安さゆえに心配があって当然です。
安いとはいっても何千万の買い物です。絶対に失敗したくないです。
不動産のプロとも言える私自身があえてこれを購入し、その一部始終を体験記として残せばこの後のお客さんにも安心の情報となるかもしれません。
では、私が安い建売物件に決断できた理由はなぜなのでしょう。

 


1、安かろう悪かろうという心配について

安いといっても何千万の買い物。欠陥住宅では大問題です。
まことしやかにささやかれるウワサどおりの安いなりの粗悪な物件なのか?
まずは、安い建売物件がなぜ安いかということを検証しましょう。
 

①土地の取得価格が安い
建売業者は土地の旧所有者から分割予定で広い土地をできるだけ安く買い上げます。
次に無駄がない必要最小限のサイズにして一つでも多くの区画に分けます。
この時のポイントは売残る物件が出ては事業として成り立たなくなるのでマーケットに合わせた必要最小限の要素は確保するわけです。
宇都宮マーケットで言えば「敷地40坪〜50坪、4LDK、駐車場2台」となります。
エンドユーザーが家一軒分に区画された土地を買うようなエンドユーザー価格ではないのです。まとめてものすごく安く買ってまとめてイッキに整備するのです。
 
②建築コスト(人件費)を下げる
同じ場所で複数の建物を同時に施工することです。
建築費用で大きなウェイトを占めるのは人件費です。これを効率よく回せば相当な費用が浮きます。
 
③設計プラン作成コスト(人件費)を下げる
あらかじめ用意された建築パターンを入れていくことで設計仕様の作成に大幅な時間をかけません。
営業社員が顧客とプランニングをする膨大な時間の打ち合わせはありません。設計担当者もインテリアコーディネーターもいません。ここでも膨大な時間と労力が省かれます。
 
④同仕様の建材設備を大量一括仕入れしてコスト(材料費)を下げる
全国津々浦々で多少のバリエーションはあるものの同じ種類の設備や建材を大量に仕入れることで材料取得費を大幅にコストカットしています。設備や建材のメーカーも大口発注者への協力的な仕入れ価格に応じています。
 
⑤高級な建材や特殊な設備機器は使わずコスト(材料費)を下げる
ハイクラス仕様の商品は数も少なく高額です。建売メーカー独自で建材を作るなどありえません。大手建材メーカー、設備メーカーの一般的に普及しているクラスの商品を上手に組み合わせて、現場で人件費を極力少なく時間をかけずに組立を行います。
デザイン仕様も特徴のないのっぺりとしたものになるのはこのためです。
 
⑥販売も顧客に直接営業せずにコスト(人件費)を下げる
建売物件会社の多くは顧客への直接営業をせずに地域の不動産会社へ仲介を依頼します。広告費や顧客対応等のコストを極力落としています。
 
⑦それなりに安心
過剰な剛性やグレードの高い仕様や建材は使わない。しかしながら、一般普及品の商品と言えども、材料自体は立派な大手建材メーカーで作られた商品です。必要十分な構造計算、ペアガラス仕様、基礎の仕様なども最新の建築基準法に合致した仕様は不可欠です。
建築メーカーによる10年間の構造躯体保証など、今は消費者保護の法律も数多く、中古と比べると相当な安心感もあります。設備は当然新品なので1〜2年のメーカー保証もついてきます。
全国展開のメーカーであれば今般、欠陥住宅などで大ダメージを起こせば会社全体の利益を損ねてしまう大問題となり、必要十分の品質は抑えておく必要があるでしょう。

 
結局のところ、注文住宅と比べればあまりにも安い価格ではあるけれど、
単に安かろう悪かろうというものではなく、
安くするための努力を積み重ねた上での完成形とも考えられます。
実際にこれまでの多くの工事の現場を見たり、社員さんに聞いて確認したりと自分なりに納得するしかないのですが、そうした安くなる理由は十分にもっともなことで、私なりに納得しているのです。
  
 

 

和室はなくなって

セルフの漆喰仕上げで味わいを

ダクトレールで照明に自由を

 2、このエリアにおける希少性

このエリアは土地の情報が少ないというのは仕事上知っています。情報が出ても、50坪程度で土地が1500万円~2000万円以上も十分あります。
 

3、購入に至るまでのいきさつ

この建売情報は前から知っていた物件情報ではあったのですが、42坪しかない土地と建売物件としての価格がネックだったのか売れ残っていました。それが現実的な金額に値下げをしてきたので、当初、旧知のお客さんに購入をオススメしました。その方は一度は検討したものの購入申込の直前で、家族内の調整がつかずあきらめることに。
この価格まで下がって他に取られてしまってはあまりにも惜しい物件価格。そして自分で購入する考えがよぎります。
 私たち家族は私の職場が1Fにある古い賃貸マンションの4階をリノベして住んでいました。この先も家は持たずに、仕事や生活に便利なこの賃貸生活で十分と考えていたのです。
 それからその発想を急転換です。購入の決断まで何日も取れません。しかし、この物件の購入を人に薦めたわけで重要ポイントはすでに抑えています。
早い決断の決め手となったのは 
1、今の家賃と変わらないこと。
2、子供が小学校を転校せずに生活のスタイルがほぼ変わらないこと。
3、この先、万一の時には売れると容易に想像できること。
です。
 

4、リセールバリューのこと

決め手になった3の話です。
これは住宅購入における落とし穴といっても良いでしょう。
購入した時に高額だと資産価値もそれなりにあると考えるのは間違いです。所有者の思い込みに近いものです。
結局のところ資産価値とはその時にいくらで売れるのかという他人(買いたい人)の判断によるものでしかありません。

4500万円の注文住宅を15年後に2500万円で売るのは なかなか難しく、
2500万円の新築建売を15年後に1500万円で売ることは普通にできるのです。
売る時は中古市場での売買だからです。

中古市場には1500万円なら中古を買っても良いという購入層はそれなりにいるのです。
2500万円で中古を買いたいという購入層はあまりいません。
なぜなら2500万円前後でそれなりの新築建売が買えるのです。中古で売れる価格帯はある程度相場が決まっていて、当時いくら高級なものであったとしても今現在は中古なのです。
 
これも建売購入の大きなメリットであり決め手となります。
安い建売物件では大きなローンも作らずに売却時の目減りも少なく、将来的な売却もしやすいという安心感を与えてくれます。
いくら大きなローンが組めたとしても、換金が難しくその後の生活の自由に縛りが出てくるようではそれは大きなお荷物(負債)に過ぎないのです。
 
 
 

工夫した洗面化粧室

 5、新築建売をリノベーションすることのメリット

最初から安っぽいところや気に入らないところはリノベーションすればいいと考えていました。
一般普及品で新建材を組み合わせハリボテのように作られたお決まりパターンの規格品ではありますが、300万円の予算を確保して内装を好きなように変えました。
新築なのに再工事なんだか勿体無い気もしますが、半分注文住宅のような愉しみもあります。
できあがってみると廉価規格品の組合せとは全く異なる見栄えになりました。
 
新築リノベは予算に合わせてやりたい部分だけを工事することができます。
基本的に補修する必要がないからです。
一方、中古リノベは老朽化したり傷んだりと補修必要な箇所が少なからずあります。リノベ費用は補修費用を含むため当然上がります。
 

6、結局のところ総額費用は?

物件購入価格2200万円+リノベ費用300万円=2500万円
予算に余裕があったり、なかったりすればリノベの費用を調整すればいいですね。
 

比較1、この同エリア内で50坪程度の土地を購入、住宅メーカー等で4LDKの家を建てた場合
  1600万円(土地)+2500万円〜(建物)=4100万円〜(合計)
 (外構工事や消費税、諸費用は除く)
 
比較2、少しグレードの高い建売物件にした場合
  土地建物合計 3500万円〜(合計)

 
お金が余って仕方ないほどの余裕があれば、もちろん立派でいい家を求めることができますが、相当な高額となってしまいます。
50歳で住宅ローンを組んで購入する私たちの住宅計画はこれで十分だったし、費用の対価と考えれば納得できる結果と言えます。
 
家内も家なんか上を見ればきりがないけれど、「新築建売+リノベ」は大いにありだと言う結論に至りました。できあがった内装にもそれなりに満足できたようです。
半分自分たちで実験台になったようなところもありますが、お客さんにも安心して納得してオススメできる一例と思います。
 
少しだけ余裕がでたのでちょっと高かったお気に入りのソファも買えました。
まだまだ揃ってない家具もありますが、少し予算に余裕が出たのでこの先愉しみながら気に入ったものを探していこうと思っています。
 

7、今後の計画。いつか売ることも。

現在妻と小学生の息子との3人暮らしです。
今回しっくい塗りやタイル貼りなど家族でのセルフリノベも結構やったので今後も気になったところを愉しみながら手を入れていこうと思っています。
おそらく15年もすれば息子も大学も卒業し、その後は家に戻ってくることもないのでしょう。
その時は売却時だろうとおぼろげに考えています。
年齢も60を越えて次は2人でゆっくり住めるマンションやどこかへ移住なんかも考えているかもしれませんね。
気になる15年後の売却価格はいくらになっていることでしょう。
将来のことでわからないとはいえ、少なくとも今回の20年ローンで払っていった残債の以上の価格にはなると容易に予想できます。
(計算したら550万円くらいでした。このくらいの残高ならまずローンより安くなることはないでしょう。)
しかし、大きなローンを組んで立派な家を売ろうと思ったらこう簡単にはいかないはずです。
私たちはこの家に縛られていないという自由と安心感があるのです。
 
 

不動産販売当時の物件資料

建売物件を買ってリノベーションしたいと思ったら!


 新築建売物件は予算に応じたリノベで大変身が可能。仲介購入とリノベがセットになったお得なプランで物件探しから一緒にスタート!!