リノベ物件紹介

戸建住宅フルリノベーション
2019.3月工事完了

宇都宮市鶴田町(グレンツェン ツルタ)

賃貸マンション

 

選べる2パターン
一つは優しげなアンティークシャビー風。
もう一つは、クールなカフェスタイル。
 
255センチのキッチンは分譲仕様。IHクッキングヒーター付き
ホテルライクなユニットバスはサイズゆったり
レンガ調のブリックタイルが質感を高めます。

宇都宮市鶴田町
リノベ費用 約330万円(税抜)
工期 約2ヶ月

2019年1~3月リノベーション施工
施工当時築22年

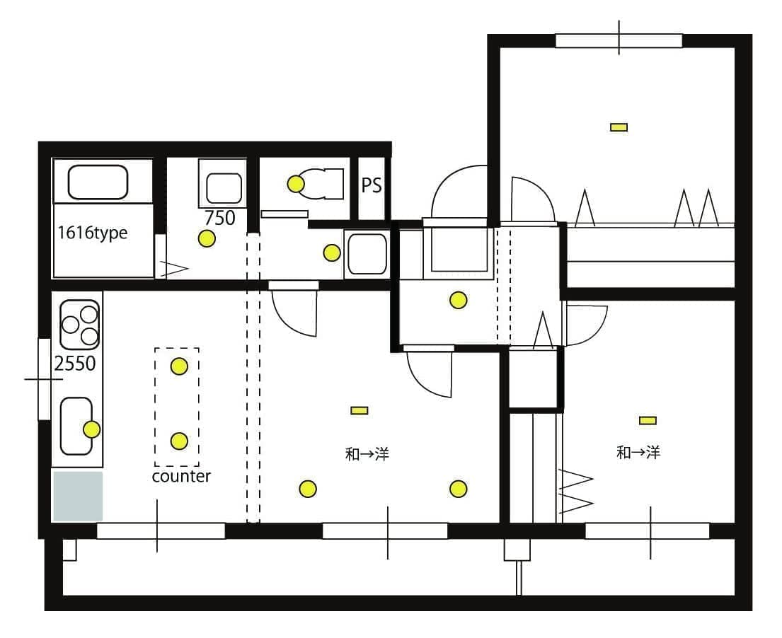
リノベDATA

既存部分を利用したフルリノベーション

大工工事:

解体撤去処分/間取り変更/建具全て新調(ドア、シューズボックス他)

キッチン:

キッチンユニット交換/アクセントタイル

壁、天井:

壁、天井クロス

床:

塩ビタイル/

水回り:

1616ユニットバス交換交換/洗面化粧台交換//トイレ交換

照明:

ダウンライト/スポットライト

アクセサリー:

シェルフ

その他:

上記価格には給湯器交換、玄関ドア交換費用は含まれておりません。


リノベーション前

 
 
リノベーション前

リノベーションをすることになったきっかけは?

 
 この物件は20年間大手企業の家族寮として利用されてきました。それまで入居促進ということを考えなくても毎月確実に家賃収入が見込めました。
 そして家族寮の借上げ契約が切れたのを機にこれまでと同様、引き続き一般の賃貸物件として募集していきたい。そこで、現状のままというわけにも行かないだろうということで新たにリノベーションし、良いスタートを切りたいと考えていたところ、当社の評判を聞かれ、お話が進むことになりました。
 
  以前の現状の様子ではやはり20年以上の設備が陳腐化していてもちろん住めないわけではないけれど入居促進は難しい様子です。
 当社の他のリノベーション中の物件などご覧になられ、全面的におまかせいただく形で2部屋をご依頼いただきました。
 
 


リノベーション前

少し間取りが違いますが、この写真と同様のものが入っていました。
本格システムキッチンに交換。
ビルトイン3口IH、人造大理石ワークトップ、オール引出しタイプ!のハイグレード仕様。
 
 
リノベーション前

リノベーション前

これは元のお部屋ですが、工事後とほぼ同じ角度から撮った写真です。
 
リノベーション前

リノベーション前

  
リノベーション前

VOICE / オーナー様より

入居を意識したサポートが助かりました!

 リノベーションの実例も見せていただきこだわりさんの工事のイメージはすでにありましたので2部屋をお願いすることにしました。結果的にこの2部屋は早いうちに決まって稼働しています。最初に入居が決まった時はなんだかホッとしました。
 当初から入居をイメージした構想を練られていて、綺麗に工事するだけではなくいろんな工夫、入居募集の仕方など逐一ご提案いただいてとても助かりました。とても安心しています。

室内だけでなく外観や募集条件も重要です!

 
全体的に外壁もしっかり塗装。玄関ドアやポストも交換されました。賃貸マーケットは厳しいので他の物件との差別化は重要です。古さをあまり感じさせない清潔さもポイントです!オーナーさんありがとうございました。
 
深いトーンを落としたブルーと白のコントラストは落ち着いていてとても好印象ですね。

VOICE / 入居者様より

 

すっごくステキなお部屋ですぐに気に入りました!

 
 
結婚を期に2人で住むお部屋を探していましたが、中に入ったら全てがおしゃれで一緒に探してくれた母も喜んでくれました。設備が新しくて使いやすそうです。これからの生活がまた一層楽しみになりました。こんな珍しい物件に巡り会えて私たち本当にラッキーです。ありがとうございました。